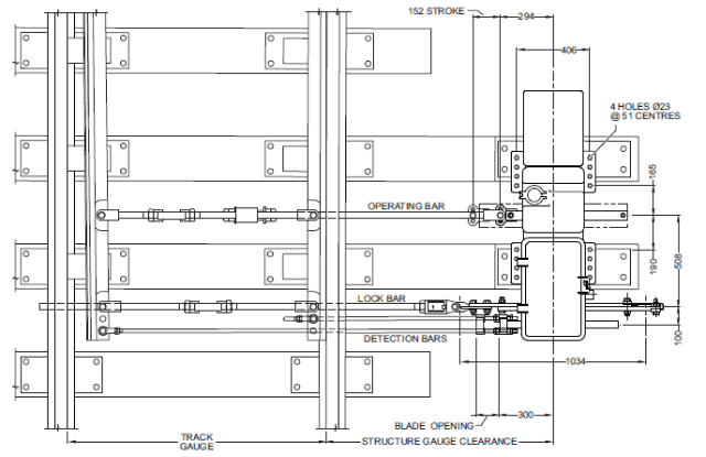
Westinghouse M5 style Point Machines
The M5 was a development of the Style M3 machine. Type 5A machine is very common on the New zealand Rail system. The M5 is a 'combined machines' in that they contain not only drive and locking mechanisms but include in their circuit-controller compartments electrical detection contacts which prove that one or other switch blade is fully closed against its stock rail and that the points locking bar is fully engaged in the locking slide. The proven design of these point machines is the result of more than 40 years of development.The robust cast base, heavy-duty motor and highly durable surface treatment make for a particularly tough and reliable for years of trouble-free service.
General shot of several redundant Westinghouse M5 point machines in store.
pictures taken April 2009 by kind permission of © Ben Calcott

General shot of redundant Westinghouse M5 point machines in store. The lever at the bottom is the manual point throw lever for manual operation. pictures taken April 2009 by kind permission of © Ben Calcott

This is the Motor end of the point machine, motor at the top, clutch at the bottom right, and the master terminal block for electrical connections on the left. pictures taken April 2009 by kind permission of © Ben Calcott
Similar photograph from the one above taken from the other side of the point machine
pictures taken April 2009 by kind permission of © Ben Calcott
Here we have the mechanical gear box in the centre of the point machine, its function is to convert high speed motor revolutions to low speed horizontal drive to move the point blades and locking / unlocking mechanism. The gear ratio is 189:1 for high voltage motors or 360:1 for low voltage versions.
pictures taken April 2009 by kind permission of © Ben Calcott
Above the motor reduction gears in the gear box can be seen now the gear wheel cover has been removed.
pictures taken April 2009 by kind permission of © Ben Calcott
Above the motor reduction gears in the gear box can be seen now the gear wheel cover has been removed.
pictures taken April 2009 by kind permission of © Ben Calcott
On the left we see the two point blade rods with machined adjustable centre's, these activate the detector cams that activate the normal and reverse contact switches in the centre right of the picture. In this setup all wiring is blue, and runs through to the master terminal blocks in the motor compartment.
pictures taken April 2009 by kind permission of © Ben Calcott
